詳細介紹
KMACG為了適應更快沖速、提高斜楔滑動受力的要求,斜楔結構做了改進,采用了氮氣彈簧增加斜楔的回程力,滑塊擋塊通過導板槽鎖住,滑塊返回增加了氮氣彈簧緩沖,減少了滑塊返回對斜楔的沖擊。
適用于比KMACA回程力大、更耐受沖擊的場合。
KMACG滑塊與底座和驅動塊的滑動面均增加了銅合金導板,比KMACA的導滑性能更好。
V型尖點不同點是: KMACG滑塊的V型尖點為190.4mm。
KMACA滑塊的V型尖點為183mm。
KMACA是采用JIS標準。
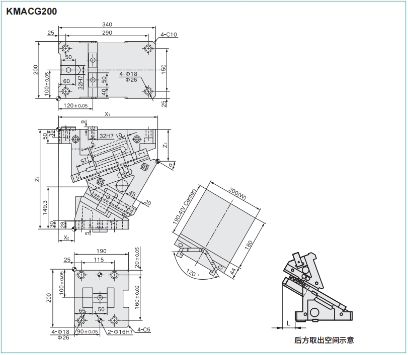
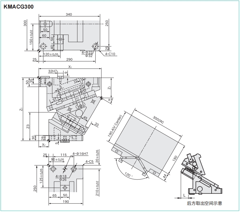
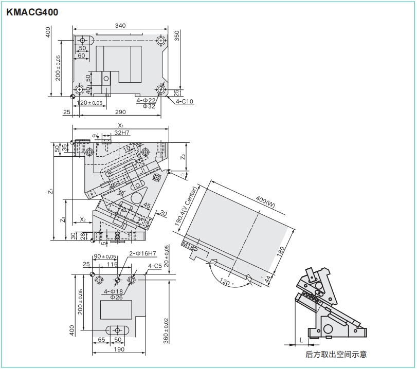
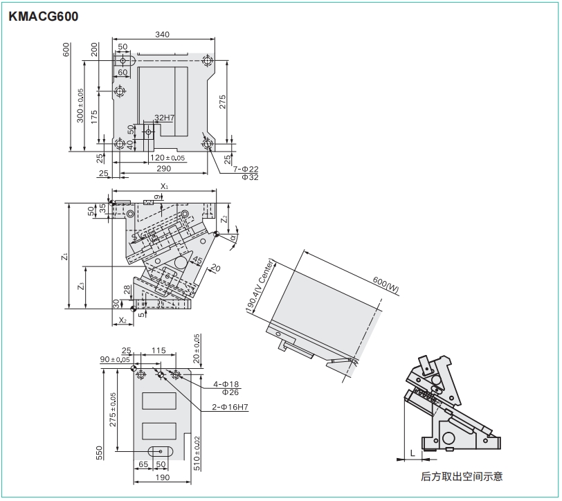
安裝面寬度有 200300、400、500、600
V型導向的自動調芯機構。
滑塊為后方拔出式樣容易調整。
不卸下滑塊即可從后方拔出彈簧,容易調整下死點。
角度0°- 60°,5°為一間隔。
尺寸圖 訂購型號 產品目錄





















